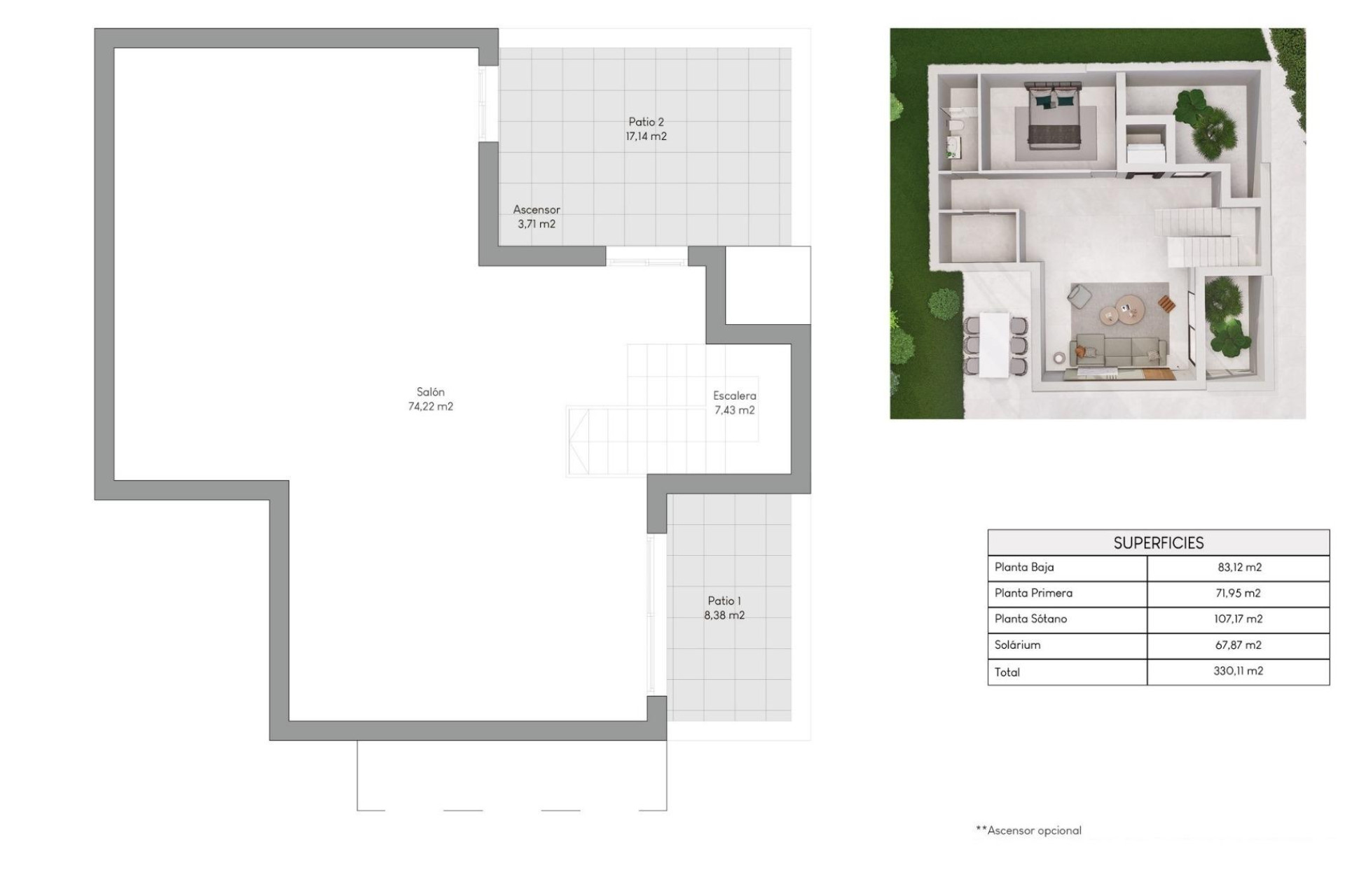
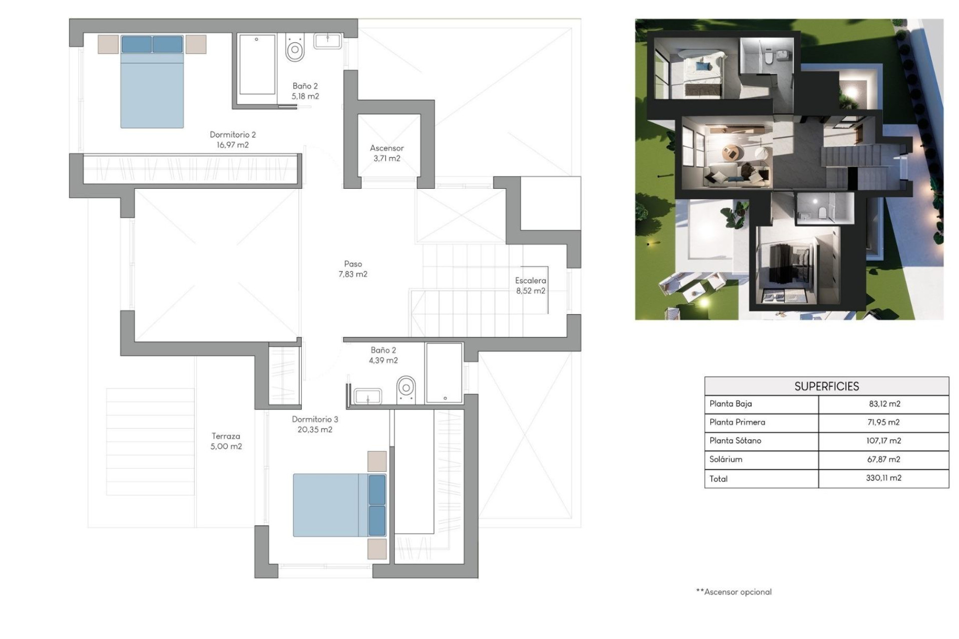
NEW BUILD VILLAS IN FINESTRAT New Build villas located in Balcon de Finestrat. New Build deverlopment of 15 totally independent luxury villas in a unique setting close to the best beaches of the Mediterranean and all services. Villas build over 2 floors and has 3 bedrooms, 3 bathrooms, open plan kitchen with lounge, build-in wardrobes, private solarium, garden with the pool and parking space for 2 cars. An optional basement and lift at an extra cost. Villas located close to 2 golf courses, theme parks, a large shopping centre and a few minutes from the beaches of Benidorm. Finestrat located in the Marina Baixa region of the Costa Blanca, close to neighbouring Benidorm and about 40 kilometres from the city of Alicante and the international airport. Benidorm is just a five-minute drive from the properties and offers all the services you would need including shops, bars, restaurants, supermarkets, banks, pharmacies and several private international schools. Close to the beaches of Levante, Poniente and Cala de Finestrat, with more than 6km in length that are among the best in Europe awarded by the European Union with Blue Flags. All leisure services such as the theme parks of Aqua Natura, Terra Mítica, Terra Natura, Aqualandia and Mundomar, Sierra Cortina and Villaitana Golf courses, hiking and climbing in Puig Campana an incomparable natural setting or enjoy of nautical sports.
Contact our team of experts and we will solve all your doubts.