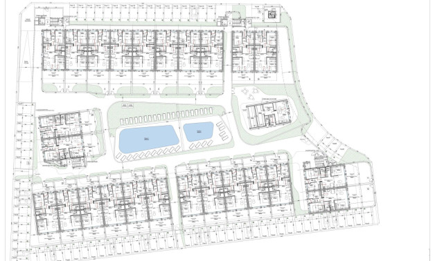
New Build Tourist Apartments in Santiago de la Ribera, San Javier – Just 750m from the Beach Exclusive Development on the Costa Cálida This exclusive residential complex of 125 tourist apartments is located in Santiago de la Ribera (San Javier), a charming seaside town on the Costa Cálida, renowned for its beautiful sandy beaches, relaxed Mediterranean lifestyle, and excellent year-round climate. With the Mar Menor just 750 meters away, these homes offer the perfect combination of comfort, style, and proximity to the sea. Modern Apartments with Multiple Options The development offers spacious 3-bedroom, 2-bathroom apartments, including an ensuite master bedroom. Buyers can choose from: Ground floor units with private garden Middle floor apartments with large terraces Penthouses with private solarium Each home is designed to maximize natural light and outdoor living. Features include fully fitted and furnished kitchens with appliances, interior and exterior lighting, bathrooms with furniture and shower screens. Every property comes with a surface parking space, while underground parking and storage rooms are available at an additional cost. Premium Amenities and Services Owners will enjoy a modern building equipped with elevators, two communal swimming pools, and beautifully landscaped gardens. The homes include pre-installation of ducted air conditioning for year-round comfort. A Smart Investment Opportunity These apartments come with a tourist license already granted, making them an excellent investment for holiday rentals. Owners can generate income through short-term rentals while also enjoying the property for their own family holidays. Please note that these residences are intended for vacation use and cannot be used as permanent homes. Prime Location in San Javier The development is strategically located close to all essential services and leisure activities. Distances to main points of interest: Mar Menor beach: 750 m La Ribera Shopping Center: 2 km Dos Mares Shopping Center: 3 km Roda Golf: 5 km Lo Pagán Marina: 4 km Murcia Airport (Corvera): 40 km Cartagena: 30 km Murcia City: 40 km Make Your Coastal Dream Come True This new build project in Santiago de la Ribera represents a unique opportunity to enjoy the Mediterranean lifestyle while making a smart rental investment. Contact us today for more details or to schedule a viewing of these modern tourist apartments just steps from the Mar Menor.
Contact our team of experts and we will solve all your doubts.