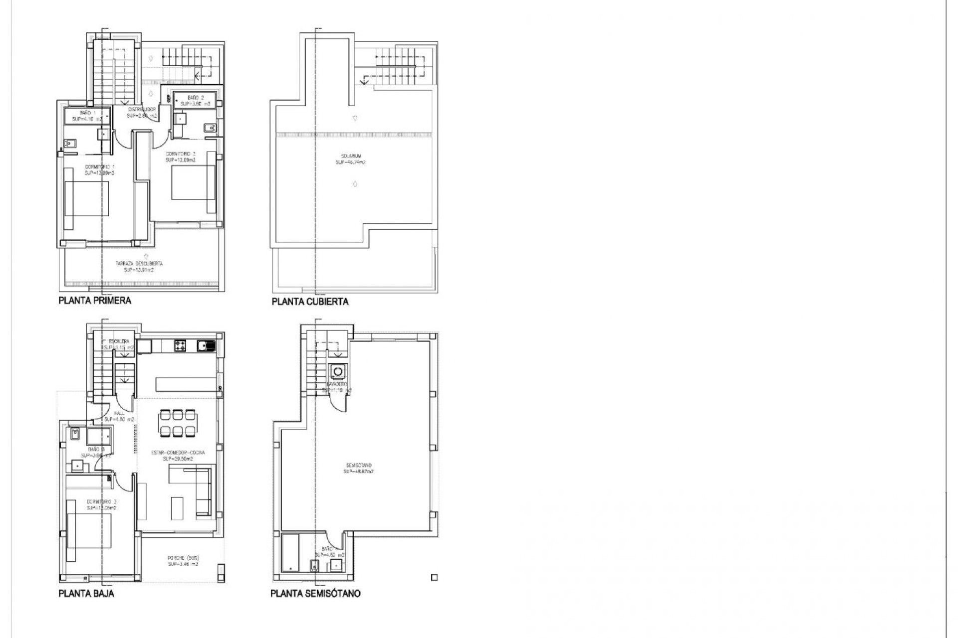
VILLAS DE OBRA NUEVA EN LA NUCIA Residencial de nueva construcción de cómodas y lujosas villas con piscina privada en La Nucia. Las villas constan de 3 amplias habitaciones dobles con armarios empotrados y forrados.Una habitación está en la planta baja y las otras dos en la primera planta. Consta de 4 baños completamente terminados con mamparas de cristal, sanitarios de porcelana y grifería termostática en las duchas, uno en la primera planta, otro en el garaje y los otros 2 en suite en las habitaciones de la primera planta. Luminoso salón con grandes ventanales que dan acceso a la parcela privada con piscina y césped artificial donde poder disfrutar y relajarse. Cocina americana totalmente equipada con muebles altos y bajos, electrodomésticos de alta gama y una isla con muebles bajos, encimera de SILESTONE con fregadero incorporado de acero inoxidable y campana extractora de diseño de acero inoxidable. Instalación de Aire Acondicionado y Calefacción por conductos AEROTHERMAL con 2 máquinas independientes (doble zona). Confort y diseño PORCELANOSA aportan acabados exclusivos, como suelos flotantes, suelos de piedra natural y gres de primera calidad.Toda la Villa cuenta con iluminación interior y exterior por LED y persianas eléctricas. Residencial situado en una zona exclusiva de gran calidad y con todas las comodidades; terraza, solarium, garaje privado para 2 vehículos, zonas ajardinadas, urbanización, piscina y todo lo que pueda imaginar. Residencial comprometido con el medio ambiente, equipado con placas solares para la producción de agua caliente sanitaria, iluminación LED y aislamiento TERMICO-ACUSTICO. La Nucía es un municipio de la comarca de la Marina Baixa, Alicante. Limita con los municipios de Altea, Callosa d'En Sarrià, Benidorm, Polop y L'Alfàs del Pi. La Nucía está situada en un valle frutal entre Benidorm y Callosa d'En Sarrià, a 3 km de la costa de Altea. El centro urbano está en un promontorio con vistas al mar Mediterráneo, a 51 km al norte de Alicante y 8 km al norte de Benidorm. DISTANCIAS: - Acceso desde la autopista A. - 5 minutos de Terra Mítica. - 5 minutos del colegio ELIANS. - 5 minutos de supermercados, cafeterías y todo tipo de servicios. - 10 minutos de la Playa de Benidorm. - 15 minutos de la Playa del Albir. - 20 minutos del Castillo de Guadalest. - 40Km del Aeropuerto de Alicante-Elche.
Contacta con nuestro equipo de expertos y resolveremos todas tus dudas.