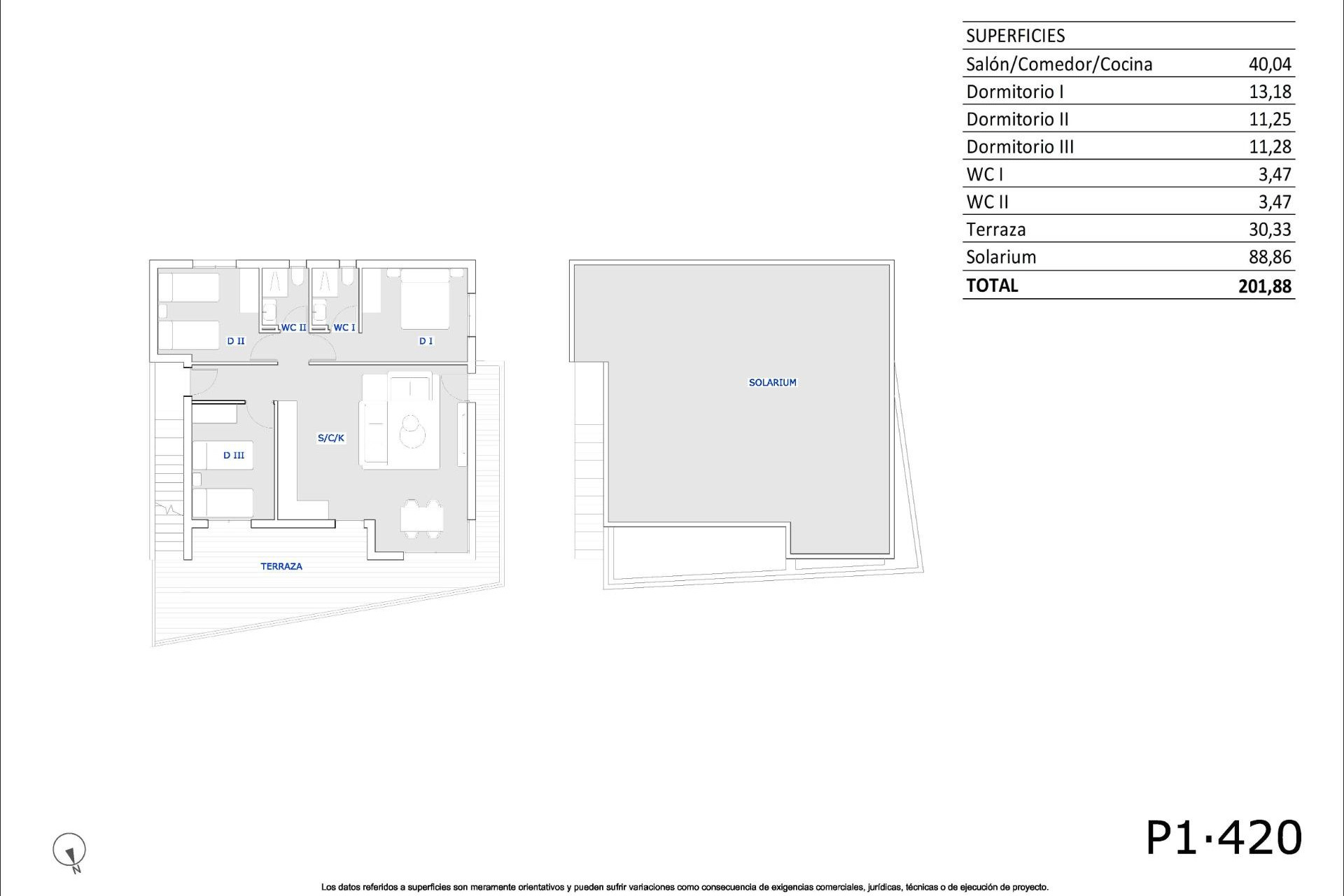
Bungalows Modernos de Obra Nueva en San Miguel de Salinas con 3 Piscinas Comunitarias Estilo de Vida Mediterráneo en un Entorno Natural Descubre este moderno residencial de bungalows de obra nueva a las afueras de San Miguel de Salinas, una localidad al sur de la provincia de Alicante, y a corta distancia andando a todos los servicios. Este encantador municipio combina la cercanía al mar con la tranquilidad de la naturaleza, convirtiéndose en un lugar ideal tanto para residencia habitual como para vacaciones. Opciones de Vivienda para Todos los Estilos de Vida El residencial ofrece apartamentos tipo bungalow con 2 o 3 dormitorios distribuidos en dos opciones: Planta baja con jardín privado y trastero Planta alta con solárium privado Cada vivienda ha sido diseñada con un enfoque moderno y funcional, proporcionando comodidad, luz natural y espacios exteriores para disfrutar del clima mediterráneo durante todo el año. Zonas Comunes para el Disfrute Familiar Este complejo residencial está completamente cerrado y dispone de excelentes zonas comunes: 3 piscinas comunitarias de gran tamaño para adultos y niños Más de 3.400 m² de zonas verdes ajardinadas Estas instalaciones hacen del residencial un espacio ideal para familias, parejas y jubilados que buscan calidad de vida en un entorno seguro y relajado. Calidades Modernas y Eficiencia Energética Las viviendas cuentan con materiales de alta calidad y acabados cuidados: Cocina completamente amueblada Carpintería exterior con rotura de puente térmico y doble acristalamiento Puerta de entrada blindada Muebles de baño incluidos Preinstalación de aire acondicionado por split en salón y dormitorios Excelente Ubicación Cerca de Golf, Playas y Servicios San Miguel de Salinas se sitúa estratégicamente cerca de zonas turísticas y naturales: Campos de golf como Vistabella, Las Colinas y Campoamor a menos de 10 km Playas de Orihuela Costa a 11 km Lagunas de Torrevieja y La Mata a solo 8 km Centro comercial La Zenia Boulevard a 9 km Aeropuerto de Alicante-Elche a 58 km (35 minutos en coche) Aeropuerto Internacional de Murcia a 63 km (1 hora en coche) Tu Nuevo Hogar en la Costa Blanca Estas viviendas representan una excelente oportunidad para quienes buscan calidad, comodidad y ubicación. Contáctanos ahora para más información o para agendar tu visita y dar el primer paso hacia tu vida en la Costa Blanca.
Contacta con nuestro equipo de expertos y resolveremos todas tus dudas.