Villa · Новое здание Murcia · Fuente Álamo

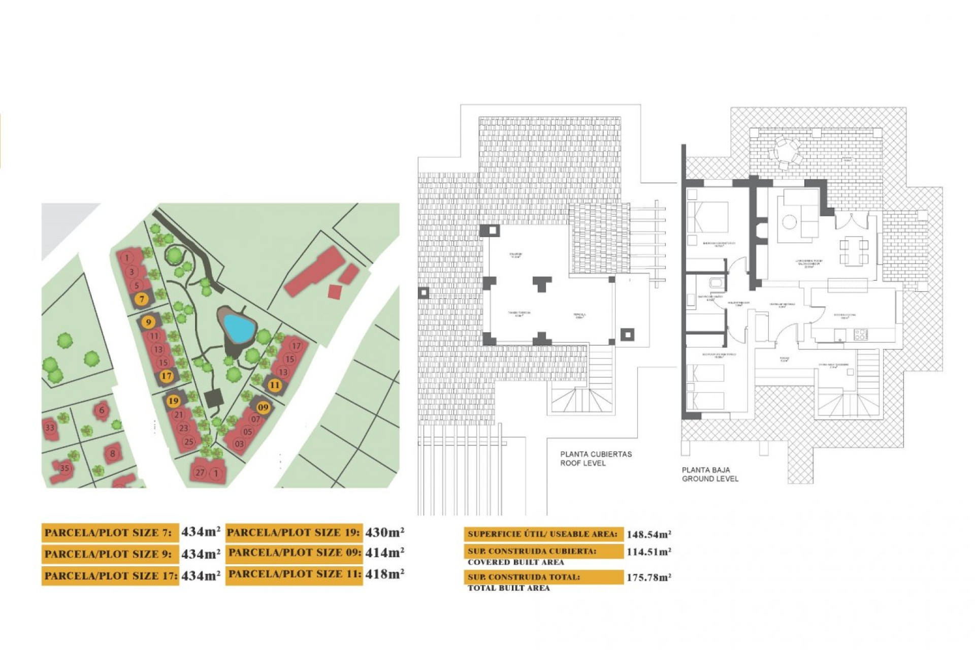
  • 175m2
  • 430m2
  • 2
  • 1

Villa · Новое здание Murcia · Fuente Álamo

Описание

Характеристики

Спальни: 2
В ванных комнатах: 1
Общая площадь: 175m2
Полезное: 148m2
Участок: 430m2
Расстояние до пляжа: 7500 мтс.
Garden
Gated
Number of Parking Spaces: 1
Air Conditioning: Pre-Installed
Parking - Space
Storage / Trastero
Location: Rural, Urbanisation
Double Bedrooms: 2
Key Ready
Beach: 7500 Meters
Useable Build Space: 148 Msq.
Terrace: 45 Msq.

карта

Делать запрос

Свяжитесь с нашей командой экспертов, и мы решим все ваши сомнения.

Responsable del tratamiento: VGVP Group, SL, Finalidad del tratamiento: Gestión y control de los servicios ofrecidos a través de la página Web de Servicios inmobiliarios, Envío de información a traves de newsletter y otros, Legitimación: Por consentimiento, Destinatarios: No se cederan los datos, salvo para elaborar contabilidad, Derechos de las personas interesadas: Acceder, rectificar y suprimir los datos, solicitar la portabilidad de los mismos, oponerse altratamiento y solicitar la limitación de éste, Procedencia de los datos: El Propio interesado, Información Adicional: Puede consultarse la información adicional y detallada sobre protección de datos Aquí.
WhatsApp