Apartment · Новое здание Alicante · Orihuela Costa

  • 69m2
  • 2
  • 2
  • да

Apartment · Новое здание Alicante · Orihuela Costa

Описание

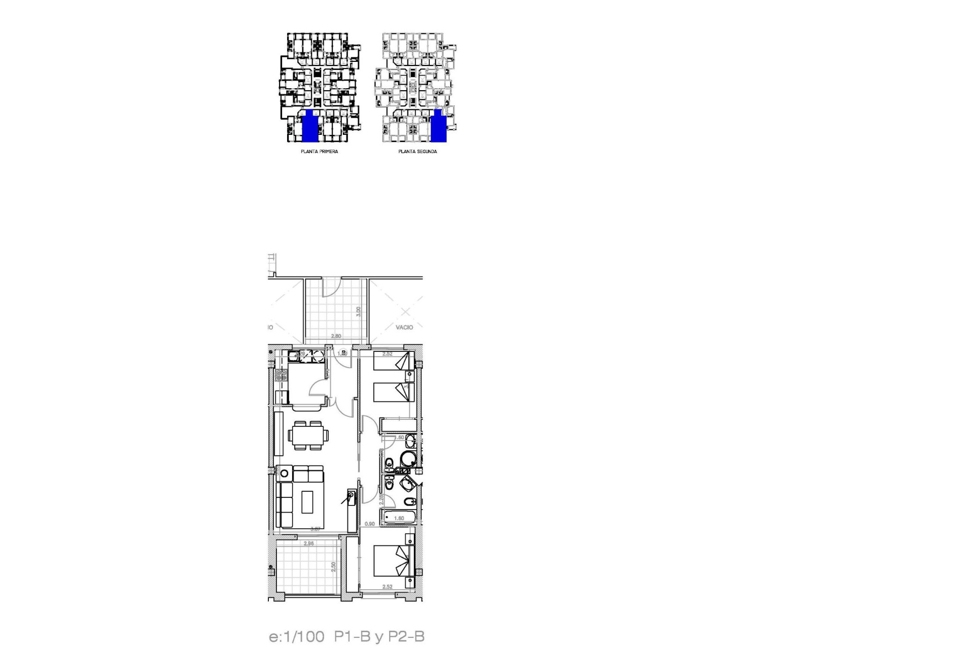
Характеристики

Спальни: 2
В ванных комнатах: 2
Общая площадь: 69m2
Полезное: 60m2
Бассейн: да
Расстояние до пляжа: 2000 мтс.
Gated
Near Schools
Parking - Space
Near Commercial Center
Location: Coastal, Urbanisation
Elevator/Lift
Communal Pool
Double Bedrooms: 2
Beach: 2000 Meters
Key Ready
Near Trees
Useable Build Space: 60 Msq.
Terrace: 17 Msq.

карта

Делать запрос

Свяжитесь с нашей командой экспертов, и мы решим все ваши сомнения.

Responsable del tratamiento: VGVP Group, SL, Finalidad del tratamiento: Gestión y control de los servicios ofrecidos a través de la página Web de Servicios inmobiliarios, Envío de información a traves de newsletter y otros, Legitimación: Por consentimiento, Destinatarios: No se cederan los datos, salvo para elaborar contabilidad, Derechos de las personas interesadas: Acceder, rectificar y suprimir los datos, solicitar la portabilidad de los mismos, oponerse altratamiento y solicitar la limitación de éste, Procedencia de los datos: El Propio interesado, Información Adicional: Puede consultarse la información adicional y detallada sobre protección de datos Aquí.
WhatsApp