Villa · Новое здание Alicante · Aspe

  • 188m2
  • 13.172m2
  • 3
  • 3
  • да

Villa · Новое здание Alicante · Aspe

Описание

Характеристики

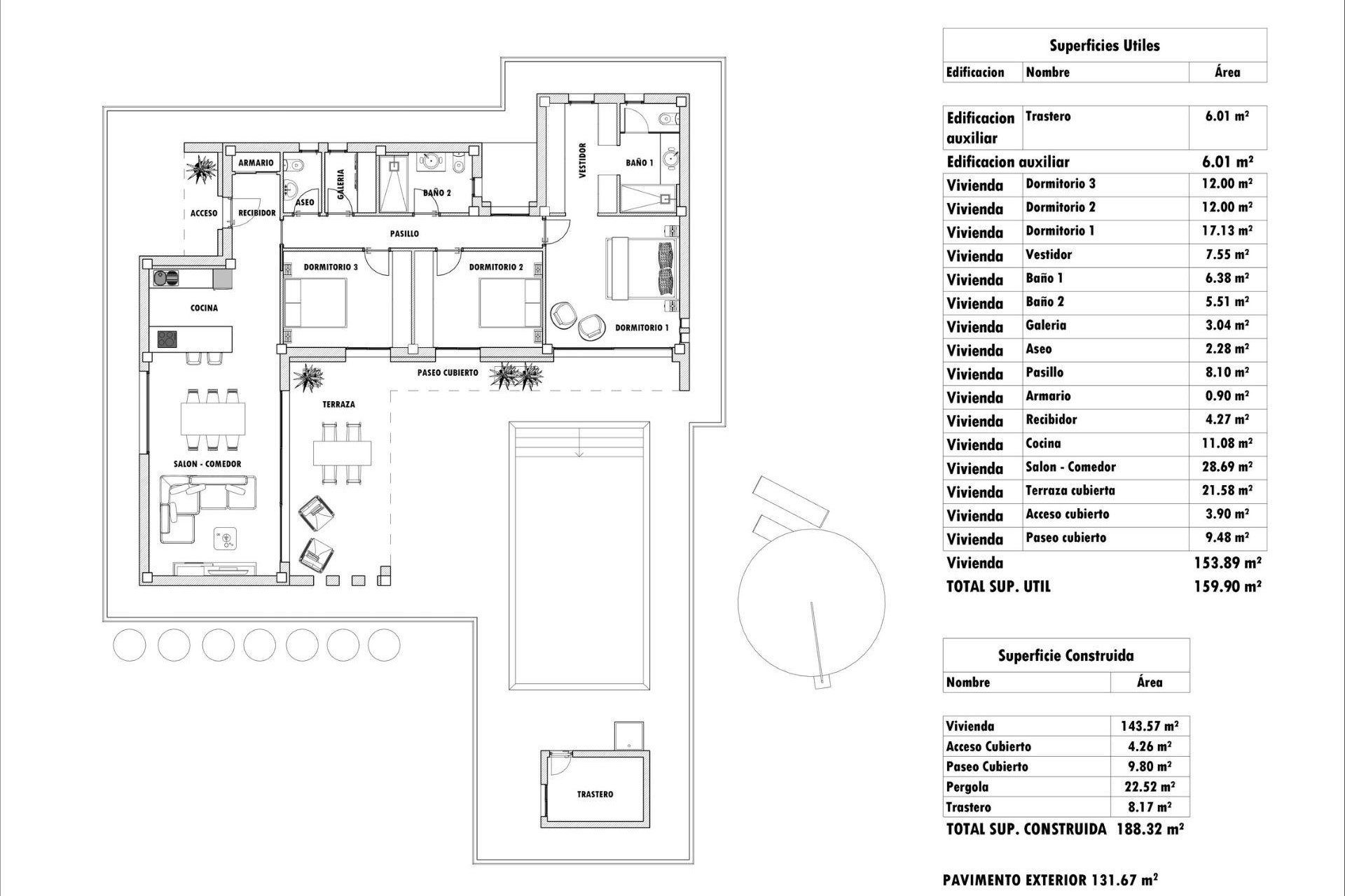
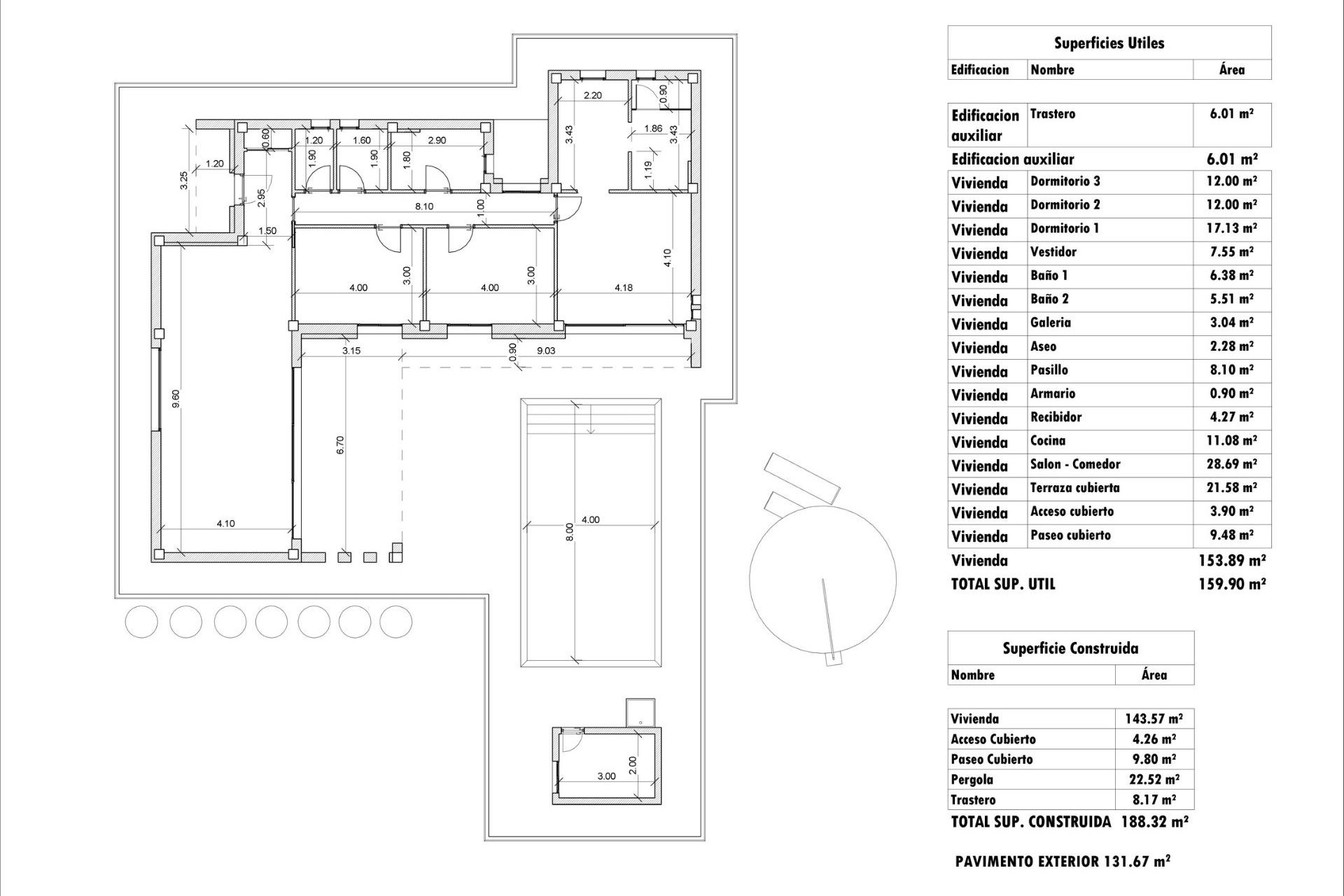
Спальни: 3
В ванных комнатах: 3
Общая площадь: 188m2
Полезное: 159m2
Участок: 13.172m2
Бассейн: да
Расстояние до пляжа: 25000 мтс.
Private pool
Garden
Gated
Number of Parking Spaces: 1
Near Schools
Air Conditioning: Pre-Installed
Double Bedrooms: 3
Parking - Space
Storage / Trastero
Terrace: 36 Msq.
Beach: 25000 Meters
Location: Mountain
Useable Build Space: 159 Msq.

карта

Делать запрос

Свяжитесь с нашей командой экспертов, и мы решим все ваши сомнения.

Responsable del tratamiento: VGVP Group, SL, Finalidad del tratamiento: Gestión y control de los servicios ofrecidos a través de la página Web de Servicios inmobiliarios, Envío de información a traves de newsletter y otros, Legitimación: Por consentimiento, Destinatarios: No se cederan los datos, salvo para elaborar contabilidad, Derechos de las personas interesadas: Acceder, rectificar y suprimir los datos, solicitar la portabilidad de los mismos, oponerse altratamiento y solicitar la limitación de éste, Procedencia de los datos: El Propio interesado, Información Adicional: Puede consultarse la información adicional y detallada sobre protección de datos Aquí.
WhatsApp