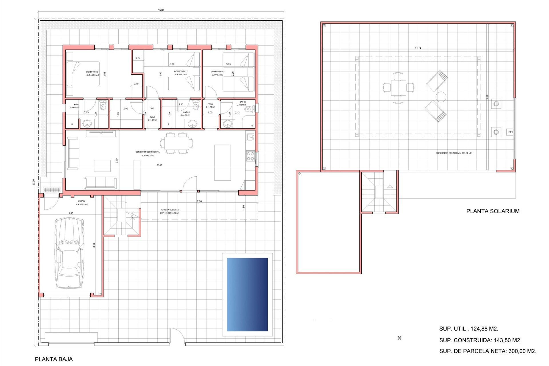
Новый жилой комплекс из вилл и таунхаусов в Фуэнте-Аламо, Мурсия. Это место предлагает исключительную природную среду, вдали от шума больших городов и туристического давления побережья. Кроме того, мы стремимся работать с учетом принципов устойчивого развития, минимизируя наше воздействие на окружающую среду и максимально интегрируясь в местное сообщество. Здесь ваши мечты о спокойной и устойчивой жизни становятся реальностью. Представьте себе, что каждое утро вы просыпаетесь в окружении впечатляющей природы, спокойных пейзажей и уникальной красоты мурсийской провинции. Этот проект уделяет особое внимание энергоэффективности, использованию экологически чистых материалов и гармоничной интеграции в сельскую местность. От проектирования недвижимости до планирования застройки — мы стремимся сократить наш углеродный след и продвигать ответственные практики во всех сферах деятельности. Полная установка кондиционера с каналами, холод/тепло. Система видеодомофона. Входная дверь с лаковым покрытием, замком и антивандальными фурнитурами. Шкафы с багажником, с внутренней отделкой, лакированные в белом цвете. Кухонная мебель с бытовой техникой. Горячая вода с помощью аэротермии. Электрические жалюзи. Перголы в соляриях. Частный бассейн 2,5x4,5 м с подводной ночной подсветкой и системой очистки с помощью хлорирования солью. Предварительная установка для наружной кухни/джакузи в солярии. Фуэнте-Аламо-де-Мурсия — населенный пункт и муниципалитет в регионе Мурсия на юге Испании. Расположен в 22 км к северо-западу от Картахены и в 35 км к юго-западу от Мурсии. Город находится в бассейне Малого моря, окруженный горными хребтами Альгарробо, Лос-Гомес, Лос-Викторияс и Карраско. Вода из этих гор стекает в Рамбла-де-Фуэнте-Аламо, а затем в Малое море. Фуэнте-Аламо находится в 30 минутах езды от аэропорта Мурсия-Корвера. Ближайшие магазины находятся в 6 км.
Свяжитесь с нашей командой экспертов, и мы решим все ваши сомнения.