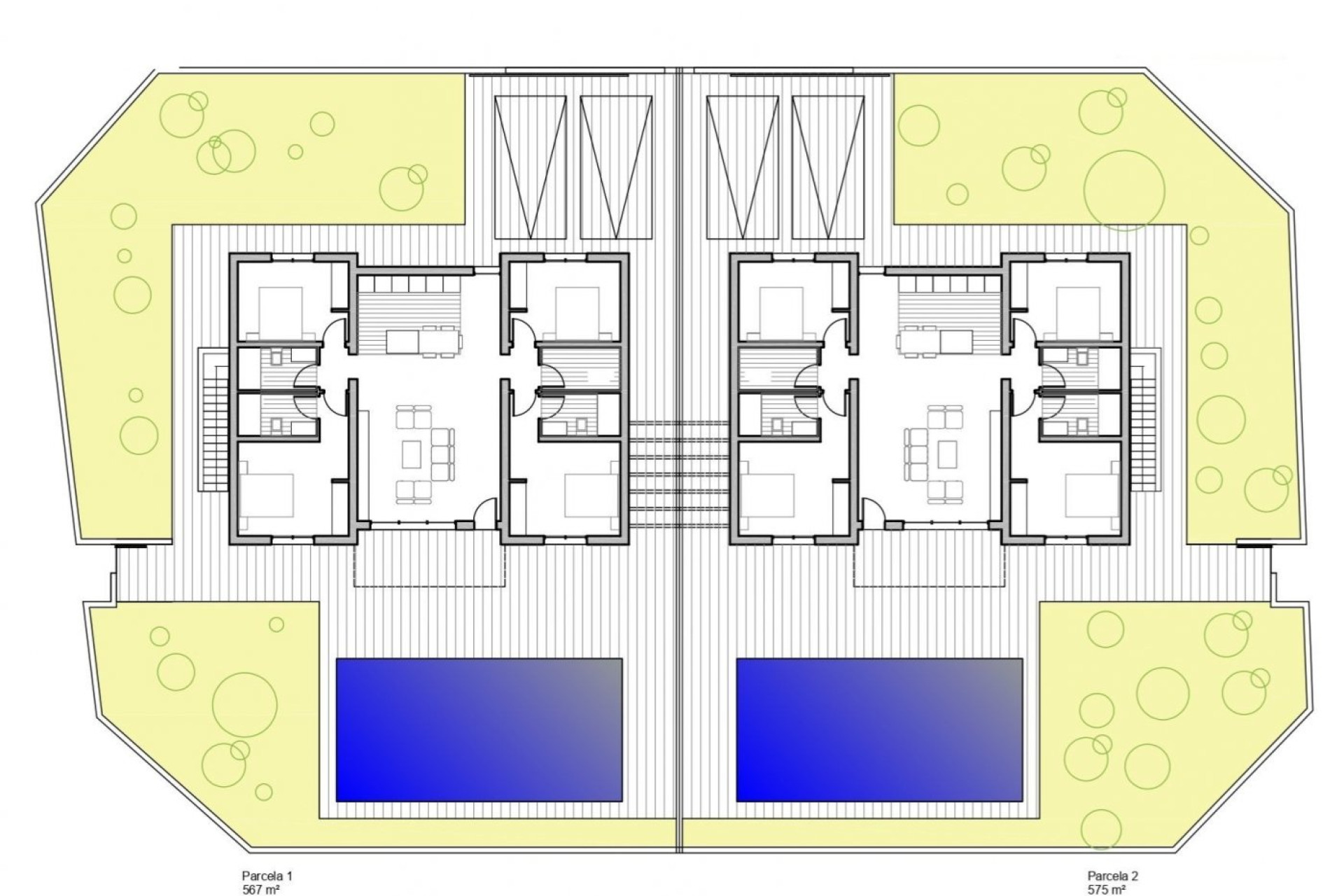
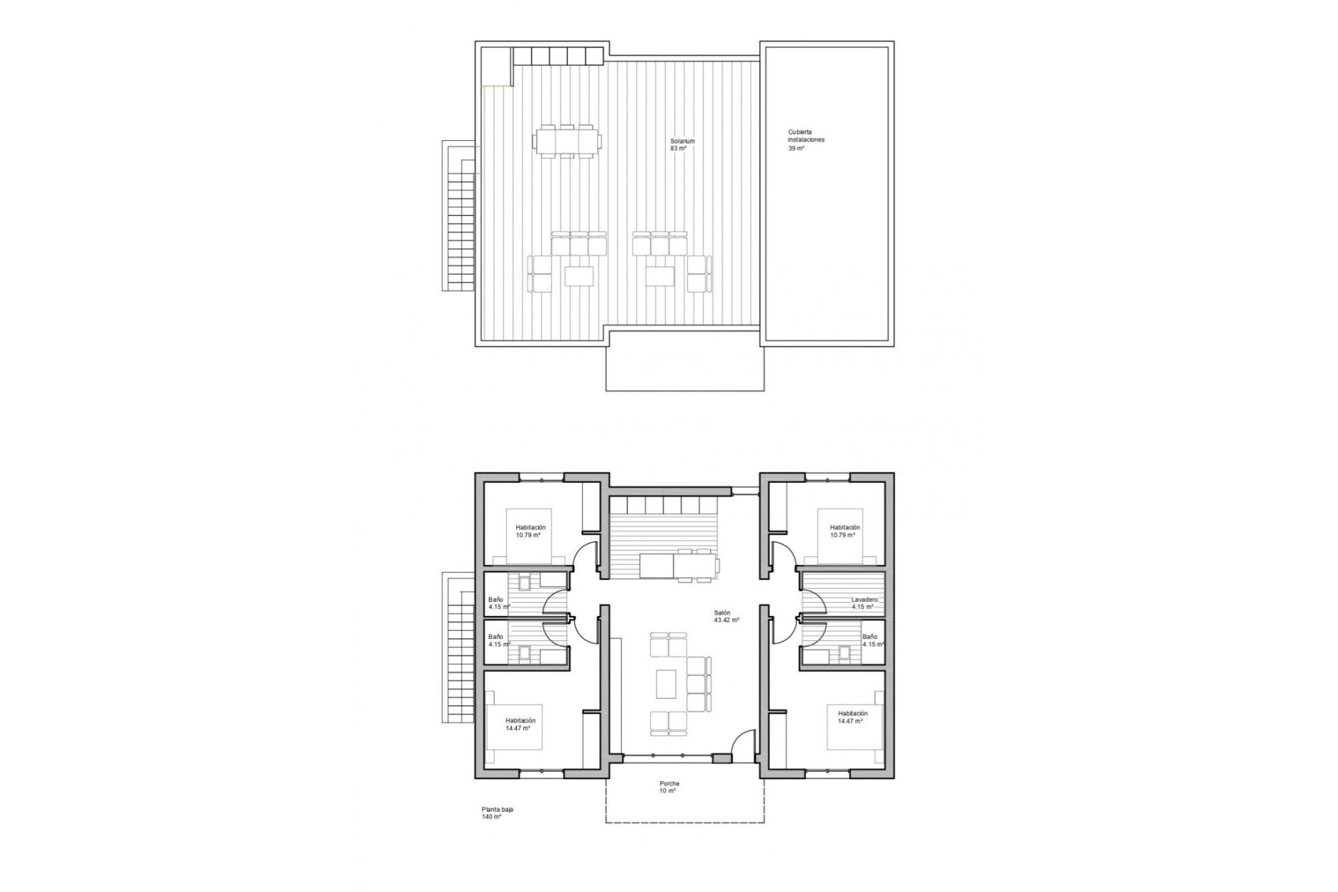
НОВЫЕ ВИЛЛЫ В РОЛЬДАНЕ Роскошные 2 одноуровневые новые виллы в Ролдане, Мурсия. Виллы построены на участках площадью около 600 м2 каждая, с частным бассейном 30 м2, садом и большим солярием на крыше. Каждая вилла имеет 4 спальни и 3 оборудованные ванные комнаты и спроектирована в современном стиле с открытой планировкой, состоящей из полностью оборудованной кухни и гостиной-столовой. Комплекс расположен в Ролдане (Мурсия), в закрытом и охраняемом курорте, включенном в частичный план площадью 300 000 м2, в окружении всех услуг, спортивных сооружений и рядом с несколькими полями для гольфа. Недвижимость будет соответствовать самым высоким стандартам и будет оборудована: Частный бассейн 30 M2 с солнечным душем. Предварительная установка для насоса с подогревом. Кухня полностью меблирована и оборудована встроенной духовкой, встроенной микроволновой печью, встроенной посудомоечной машиной, холодильником и вытяжкой. Островная зона на кухне. Светодиодное освещение: внутри дома (столовая, кухня, коридоры и ванные комнаты), а также на открытых площадках. Шкафы-купе с выдвижными ящиками. Полностью оборудованные ванные комнаты с подвесной тумбой и подвесным унитазом, зеркалом с подсветкой, душем с "эффектом дождя" и душевыми сетками. Предварительная установка канального кондиционера. Летняя кухня с раздвижными дверями в солярии. Предварительная установка стиральной машины и розетки для холодильника. Солнечная панель. Парковка на участке. Ролдан - традиционный город со всеми необходимыми удобствами, включая супермаркеты, рестораны, бары, поликлинику, аптеку, полицейский участок, заправочную станцию, механиков, стоматологов, врачей и многое другое. До близлежащих гольф-курортов Ла Торре и Терразас легко добраться, аэропорт Корвера находится в 15 минутах езды, а пляжи Мар Менор - в 20 минутах езды.
Свяжитесь с нашей командой экспертов, и мы решим все ваши сомнения.