Бунгало · Новое здание Alicante · Torrevieja

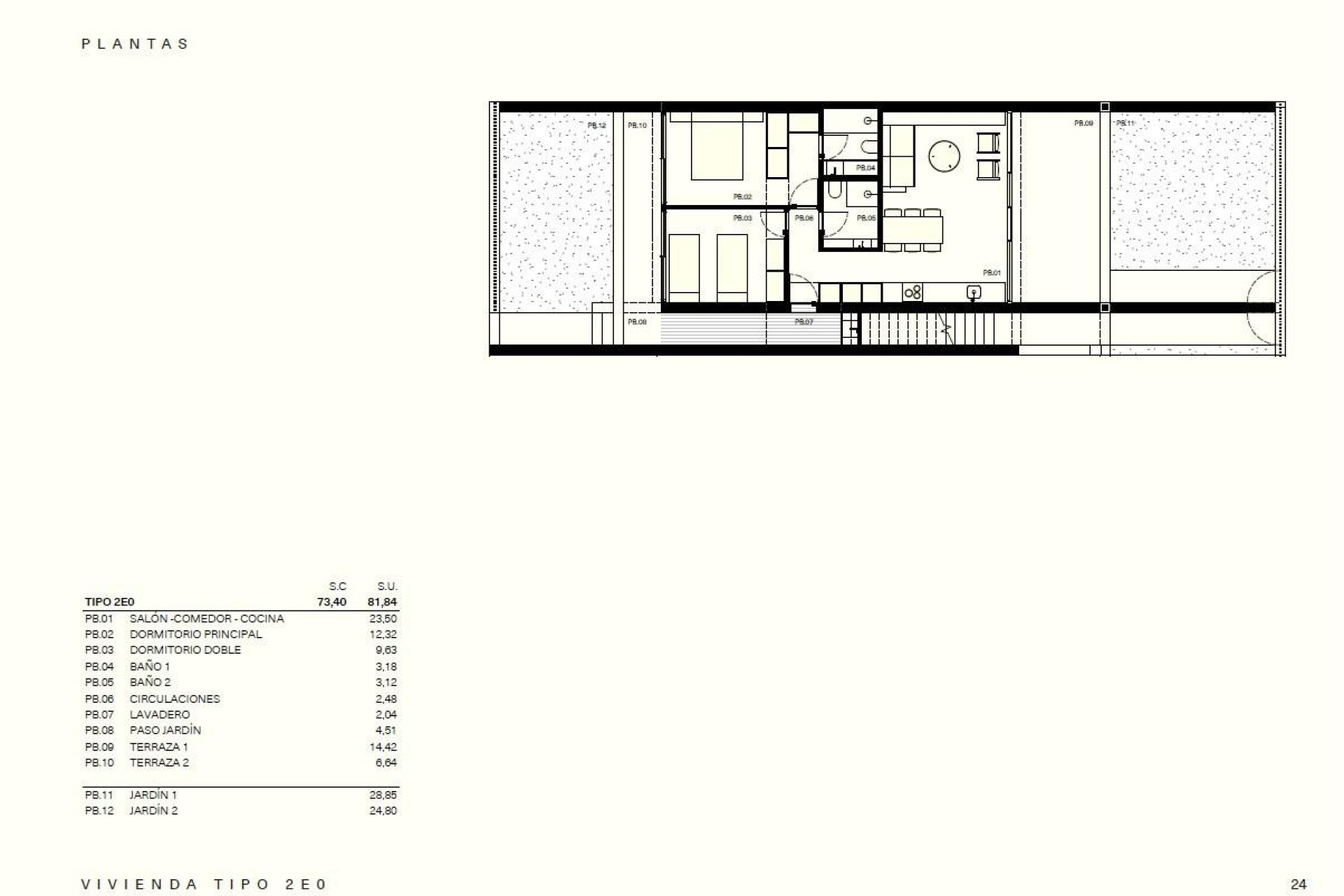
  • 81m2
  • 53m2
  • 2
  • 2
  • да

Бунгало · Новое здание Alicante · Torrevieja

Описание

Характеристики

Спальни: 2
В ванных комнатах: 2
Общая площадь: 81m2
Полезное: 73m2
Участок: 53m2
Бассейн: да
Расстояние до пляжа: 3500 мтс.
Garden
Gated
Terrace: 20 Msq.
Number of Parking Spaces: 1
Near Schools
Air Conditioning: Pre-Installed
Parking - Space
Near Commercial Center
Storage / Trastero
Location: Coastal, Urbanisation
Communal Pool
Double Bedrooms: 2
Beach: 3500 Meters
Useable Build Space: 73 Msq.

карта

Делать запрос

Свяжитесь с нашей командой экспертов, и мы решим все ваши сомнения.

Responsable del tratamiento: VGVP Group, SL, Finalidad del tratamiento: Gestión y control de los servicios ofrecidos a través de la página Web de Servicios inmobiliarios, Envío de información a traves de newsletter y otros, Legitimación: Por consentimiento, Destinatarios: No se cederan los datos, salvo para elaborar contabilidad, Derechos de las personas interesadas: Acceder, rectificar y suprimir los datos, solicitar la portabilidad de los mismos, oponerse altratamiento y solicitar la limitación de éste, Procedencia de los datos: El Propio interesado, Información Adicional: Puede consultarse la información adicional y detallada sobre protección de datos Aquí.
WhatsApp